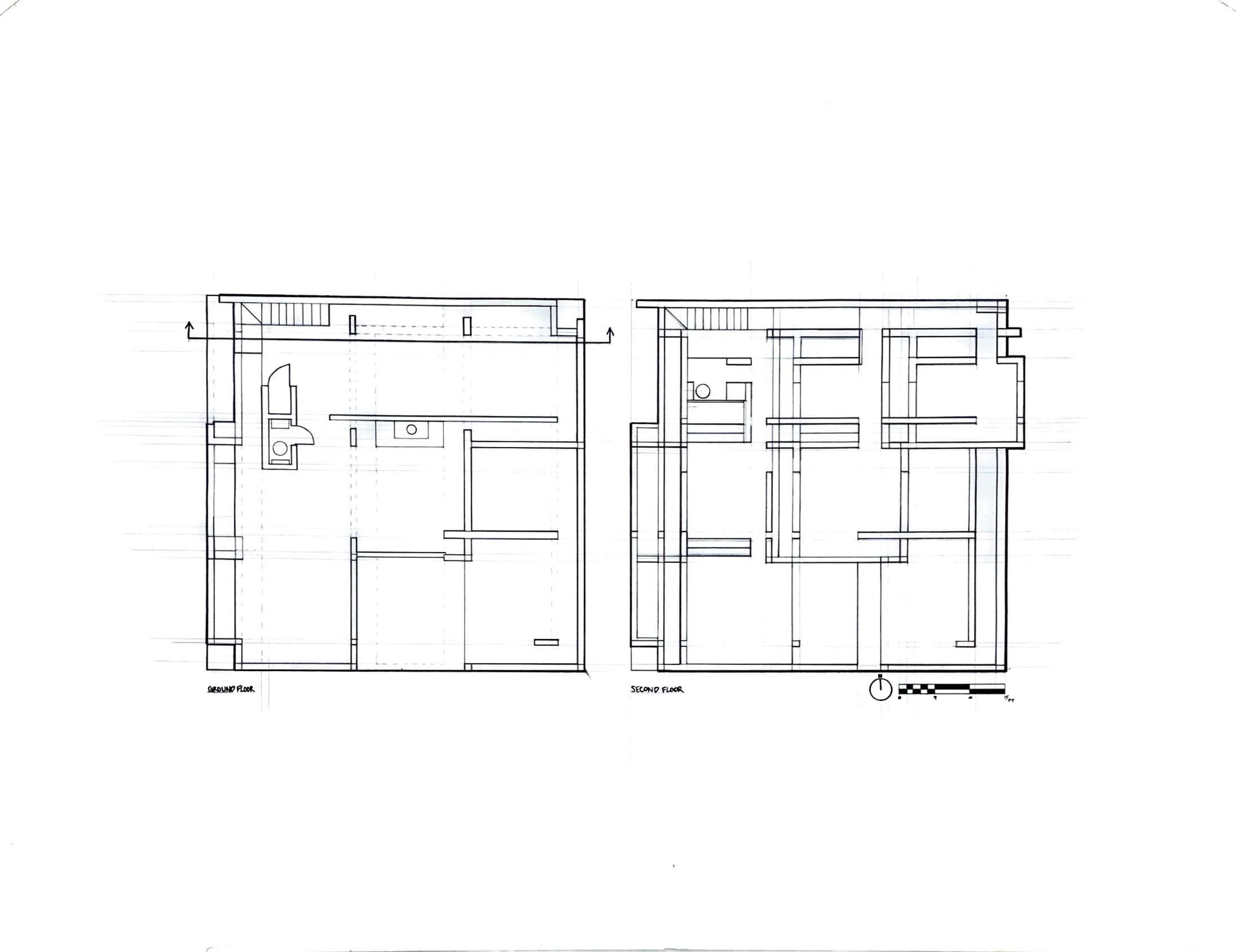
House II Precedent Study
A project dedicated to understanding the modern creation, House II, by Peter Eisenman.
Studio project, University of Illinois at Urbana-Champaign, March 2024






AXIS: This abstract model represented how each facade of House II was entirely unique, though still carrying the same proportions as the rest of the model.

CONTAINER: The house had various rectangular prisms that made up the space inside. This model represents each of these containers and how they fit into the proportions (thirds) of the building.

DIRECTION: The entrance of a building dictates where a visitor will go, providing them a sense of direction when first interacting with the model. Here, stacked pieces of matboard with intentional cuts help visualize the process of elimination for guests to determine where they should go first.

FOCAL POINT: The highlight of many models, the focal point is what a viewer is first drawn to when observing a model. Typically, the center of a model or various walls that act as a visual guide have the viewer go in a specific direction.
House II was not built for living in, rather, as an experimentation of life-sized models. Still, as people moved in, they attempted to make it a home.


